Achat appartement T4
77.65m² à Chalons-En-Champagne (51000)

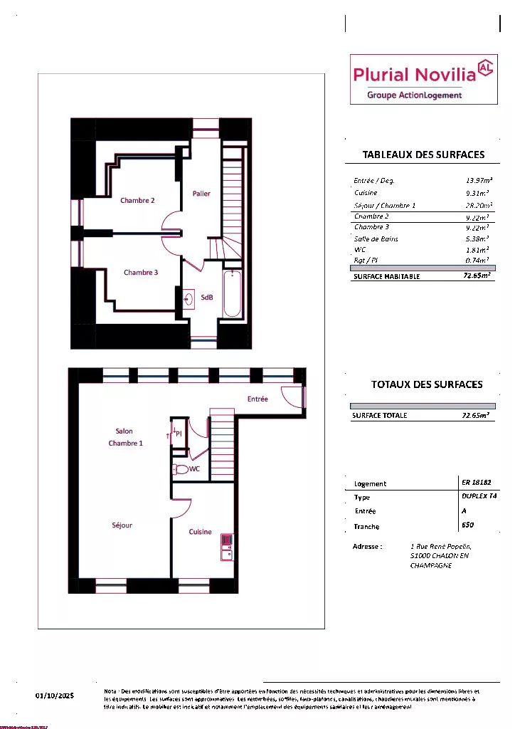
001BIS RUE RENE POPELIN - 51000 CHALONS-EN-CHAMPAGNE - Marne

  • 4 pièces
  • 2 chambres
  • 77.65m²

Description

Au 1 bis rue Popelin, appartement de 78.74 m² carrez en duplex, au rdc une entrée, un placard, une cusine, un salon sejour, WC, à l'étage 2 chambres, une salle de bain. Taxe foncière 2026 : 938 euros. Charges 1 107 euros par an soit 92 euros par mois.
Montant estimé des dépenses annuelles d'énergie pour un usage standard : entre 940 euros et 1 310 euros par an. Prix moyens des énergies indexés sur l'année 2023 (abonnements compris).Vente ouverte à titre de résidence principale. Visites sur RDV, renseignements et dépôt des dossiers complets en contactant le commercialisateur. Délais de remise des offres prioritaires : 1 mois à compter de la dernière annonce légale. Remise des offres : par mail uniquement. Offre et prix soumis à condition de ressources. Les délais de remise de offres, priorités des candidatures, le prix et les conditions de ressources relèvent de de l'article L443-11 et suivants du CCH. Frais de notaire réduits et pas de frais de notaire pour les locataires PLURIAL NOVILIA.
  • T4
  • 77.65
  • 4 pièces
  • 2 chambres
  • Etage 03
  • Chauffage Gaz

A propos de la consommation énergétique de ce bien (dont Emissions de gaz à effet de serre)

Econome
Energivore
A
B
C
90
D
E
F
G
Faible émission
Forte émission
A
B
C
17
D
E
F
G

Visite virtuelle

Plurial Novilia vous propose la visite virtuelle en 360°

Visite Virtuelle ER.18182

Emplacement de ce bien et de ses commodités

Cet appartement sur Chalons-En-Champagne m'intéresse

Adresse
Je suis étudiant(e) *
Avez-vous déjà une demande de logement social en cours ? *

Vous avez la possibilité de faire votre demande en ligne à partir de notre site

Faire une demande de logement

Agence à contacter

Simuler un calcul de mensualité hors frais et assurance

Montant de votre échéance mensuelle :
Avec un taux de % pour mois

Ces annonces pourraient aussi vous intéresser

* Vente soumise à conditions.

Vous devez être connecté pour pour gérer vos alertes et vos favoris